Het 3D - ontwerp van onze leermiddel:


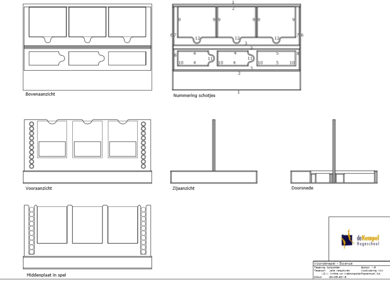
We hebben gebruik gemaakt van de kundigheid van de vriend van onze medestudent Mirthe. Hij heeft voor ons het product uitgetekend in een speciale, daarvoor bestemde programma...


Het proces in de Fablab, te Eindhoven. Met een beetje handigheid, creativiteit en inzicht kunnen we de stukken wellicht toch wel in elkaar puzzelen...


En ja hoor.. Onze Onderwijsleermiddel: 'HET SAMEN-SPEL'

Maak jouw eigen website met JouwWeb